Leased

ROOM TO MOVE AND GROOVE. AVAILABLE 4TH APRIL 2015

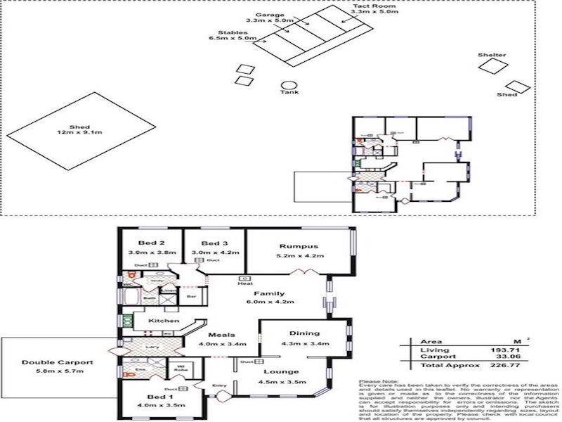
Lovely family home situated on approx 10 acres of land consists of the following:

- 3 Large bedrooms, main with ensuite and WIR
- Separate formal lounge/dining rooms
- Open and spacious family living room/meals
- Large kitchen with plenty of cupboard space
- Huge separate games/theatre room, great for entertaining
- Ducted evaporative air-conditioning
- Combustion heating
- Double carport under main roof
- Huge workshop/shed with lights, power and concrete + another shed!
- 90,000 litre rain water tank
- Front and rear access
- Ideal for cars, boats, trailers, horses and more!
- New kitchen appliances, inc the kitchen sink
- Inbuilt bar area
- Security alarm
- Dual road access

Note: Landlords will be adding some more fencing & concreting to the property.

A wonderful place to raise the kids and enjoy the outdoors.

6 WEEKS BOND + 2 WEEKS RENT WILL BE REQUIRED.
3 2
Available Leased
Address Lot 10 Nemesis Court, Buckland Park
Price $420 per week
Property Type Rental
Property ID 57
Category House

Agent Details

Teresa Maurici Seal photo

Teresa Maurici Seal

08 7071 7280
View Profile