Sold

SOLID HOME. MAKE AN OFFER!

Renovate or Detonate

This cute solid brick family home built in1963 is ideal for the first home buyer, developer or investor. Set on approx 680 with subdivision potential (subject to council consent). The home does need work, but don't let that put you off looking beyond the potential and great price.

Inside the home consists of following:
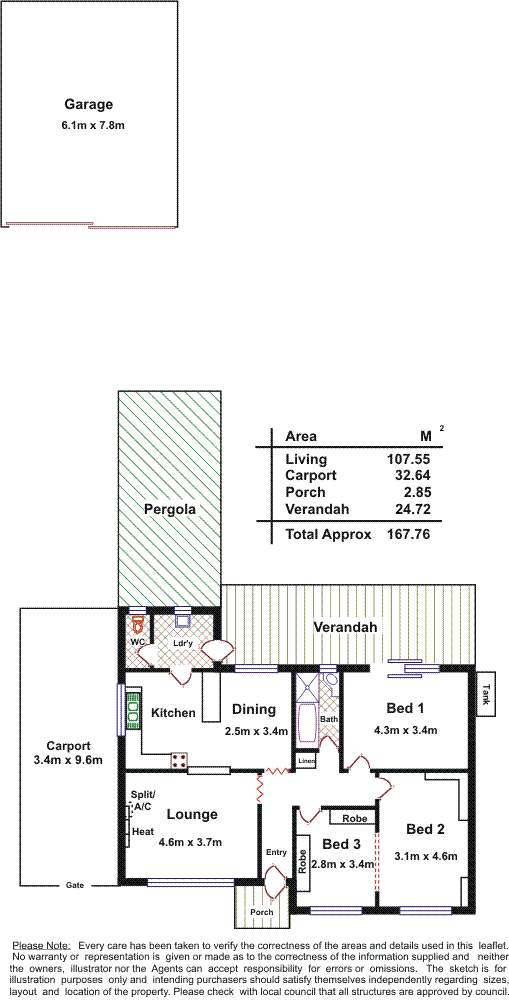
Kitchen/Meals
Lounge with split system air & gas heater
2 large bedrooms (main with b.i.r)
Main bathroom
Linen cupboards in hallway
Sep w.c
Laundry

Outside the home consists of:
Roller shutters to front
Tiled verandah
Driveway with gate for up to 3 cars
Large Garage at rear (fits 2 cars)
Fruit trees
Large backyard

Close to Ingle Farm shopping centre, transport & Roma Mitchell Secondary School. Approx 20min to the city.
2 1 3 680 m2
Address 5 Jolly Avenue, Northfield
Price SOLD
Property Type Residential
Property ID 38
Category House
Land Area 680 m2
Floor Area 97 m2

Agent Details

Teresa Maurici Seal photo

Teresa Maurici Seal

08 7071 7280
View Profile