Leased

5 Jolly Avenue, Northfield

$290 per week

2 1

SOLID AS A ROCK....AVAILABLE NOW!

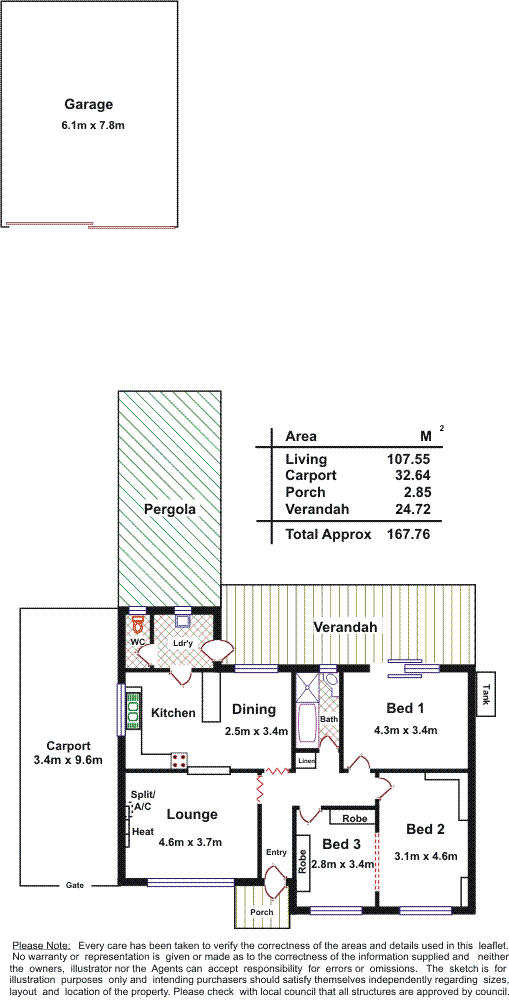
Cute Solid Brick Home for Rent.

INSIDE: 2 or 3 bedrooms (main with b.i.r's), formal lounge with split system, kitchen/meals, sep bathroom, w.c & laundry, linen cupboards in hallway.

OUTSIDE: roller shutters to front, under cover tiled verandah, shed, large back yard with fruit trees & driverway (upto 4 cars).

Close to schools, transport, shops and approx 15min to the city.

Sorry no dogs allowed, cat is ok.

Details

Available Leased
Address 5 Jolly Avenue, Northfield
Price $290 per week
Property Type Rental
Property ID 52
Category House

Share

Teresa Maurici Seal photo

Teresa Maurici Seal

08 7071 7280